トップページ | 物业信息 | Shinagawa V Tower

 
■物业名称/Shinagawa V Tower 4206号室
■所在地/东京都港区港南2-16-7
■交通/JR山手线・京滨东北线・京急本线「品川」站步行7分钟
■土地权利/所有权
■结构/钢结构・钢筋混凝土结构・钢骨混凝土结构 附地下3层 陆屋顶 地上43层建筑
■总户数/650户
■建成年月/2003年3月(平成15年)
■开发商/Mitsubishi Corporation、Tokyo Tatemono Co., Ltd.、Kintetsu Real Estate Co., Ltd.、Total Housing Co., Ltd.、Kangyo Real Estate Co., Ltd.
■施工/Obayashi Corporation、Dai Nippon Construction、Fudoken Construction(联合体)
■管理公司/Tokyu Community Corp.
■管理形态/部分委托(日间值班)
■可养宠物/可(有详细规定)
车位/使用借贷契约,空位有大型车和高顶车无空位

【共用设施】

○地下/Coach Gate(地下停车场车辆上下车区)
○1层/News Café、茶室、休息厅
○2层/便利店
○3层/Egg Theater(多功能剧场)
○25层/Conditioning House(健身区、放松区)
○41层/宾客房
○42/空中酒廊(Sky Saloon

 


 
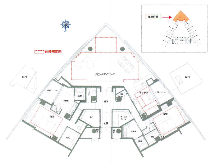
■专有面积/285.62㎡(墙芯)
■楼层/第42层(顶层顶楼公寓)
■地下1层储藏室(No.89)专用使用权
■管理费/93,700日元(月额)
■修缮基金/76,260日元(月额)
■互联网接入费/1,320日元(月额)
■现况/空室
交房 / 协商
 

■系统厨房全新更换(配备洗碗机及内置净水器水龙头)
■整体浴室全新更换(带浴室干燥机)
■室内门全新更换 ■空调全新安装(全屋)
■墙纸更换 ■地板更换
■洗手台全新更换 ■带温水清洗功能的马桶全新更换
■全新安装嵌入式筒灯 ■玄关及走廊铺设大理石
■地暖系统 ■热水器全新更换(带循环加热功能)
■全新安装内置式洗衣机与烘干机
室内清洁等