トップページ | 物业信息 | The Park House Takanawa Tower

 
■财产名称/The Park House Takanawa Tower
■地点/东京都港区高轮 1-4-10
■交通/东京地铁 南北线和都营三田线 白金高轮站 步行 2 分钟 都营浅草线 仙阁寺站 步行 11 分钟
■土地权/所有权
■结构/RC,平屋顶,地上 26 层,地下 1 层,26 层
■使用区/商业区,中高层住宅 1 级专用区
■表面積/2,006.93m2
■共同拥有/14,271/1,211,093
■单位总数/164
■施工年份/2021 年 10 月
■销售公司/Mitsubishi Jisho Residence、Mitsubishi Warehouse、Daiei Real Estate Co.
■建筑公司/Kumagai Corporation Metropolitan Branch
■管理公司/Mitsubishi Jisho Community Co.
■管理系统/完全委托(日班)
■养宠物/允许(需要事先批准,并有饲养动物的详细规定)。
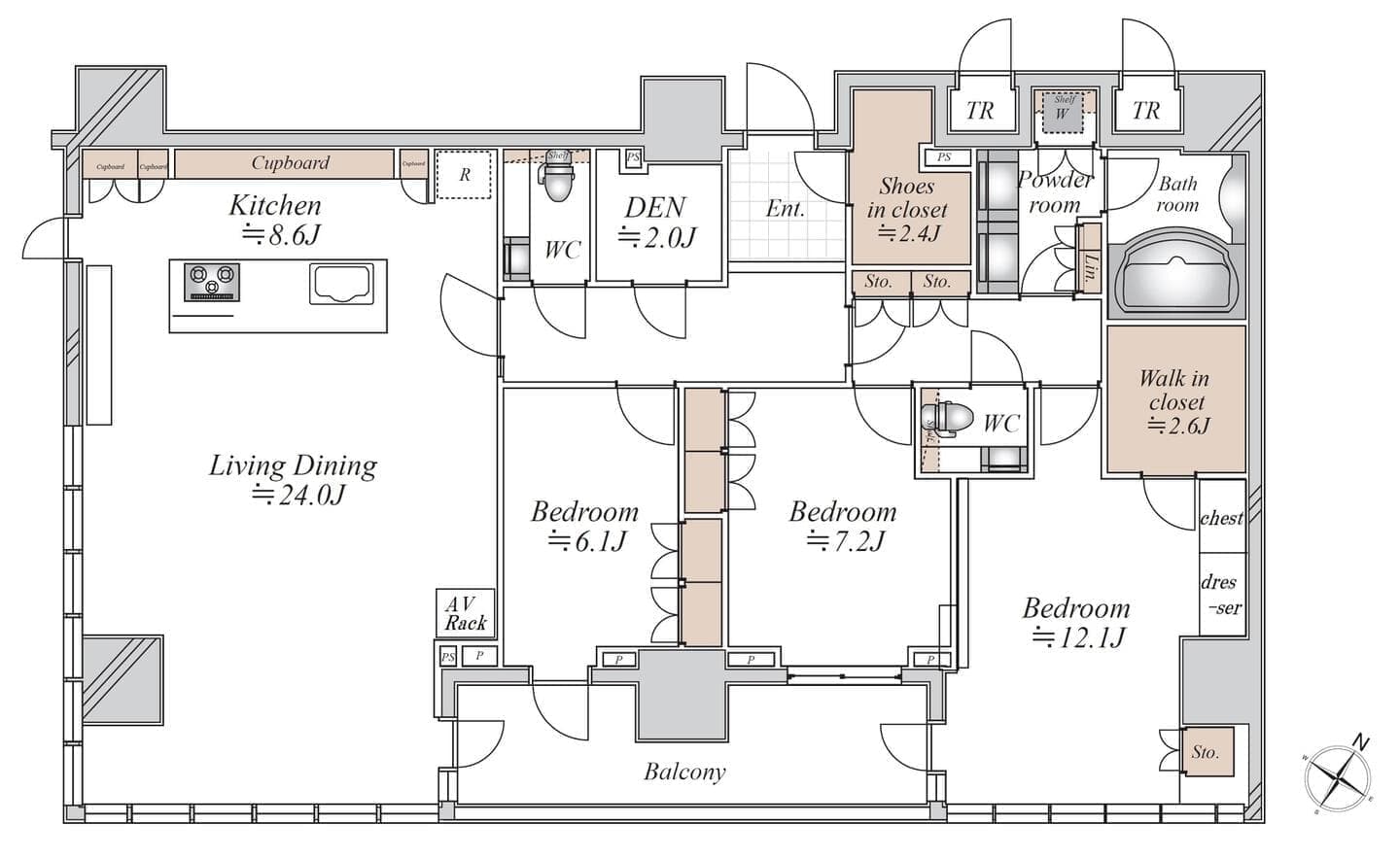
■注/专用区域包括一个 1.77 平方米的储藏室。

※如果所示图纸与当前情况有任何差异,则以当前情况为准。

 
■专属面积/142.71㎡(墙芯)
■阳台面积:11.77㎡
■26 楼
■管理费/59,800 日元(每月)
■维修备用金/18,560 日元(每月)
■共用阅览设施费/275 日元(每月)
■互联网使用费/1,516 日元(每月)
■现状/空房情况
■交付/咨询